- BY Clarita Di Lena
- POSTED IN Metrocubo 118, Metrocubo 119
- WITH 0 COMMENTS
- PERMALINK
- STANDARD POST TYPE
Demolizione e ricostruzione in zona sismica –Superbonus 110%
rispetto dell’edificio preesistente
e nuove murature armate antisismiche
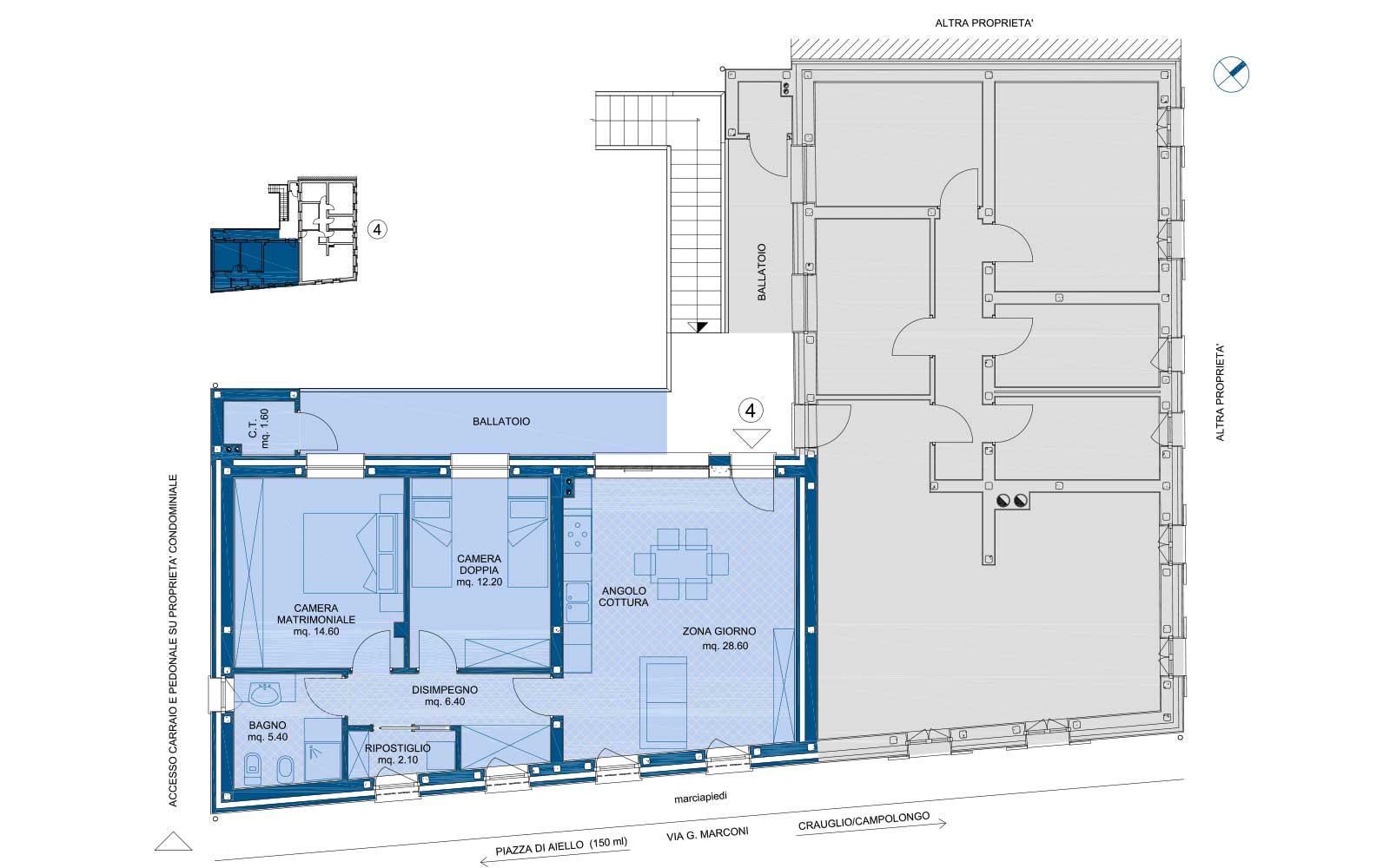
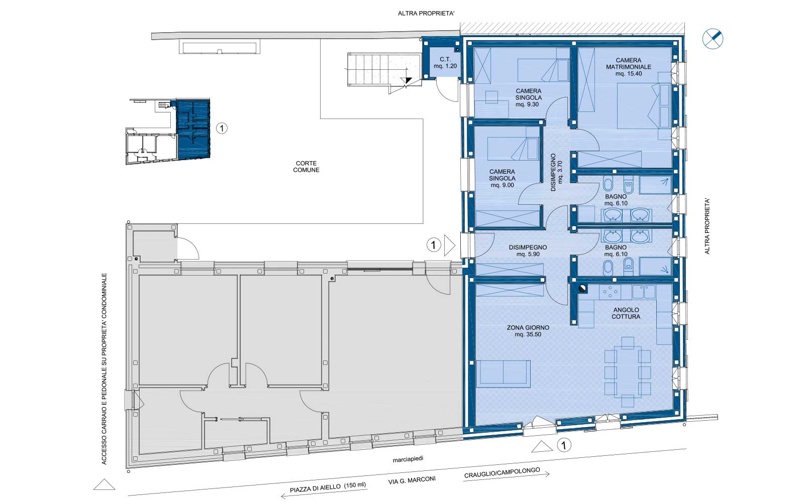
Nel centro storico di Aiello (UD) è stato costruito un nuovo edificio residenziale che ha sostituito quello esistente d’epoca ottocentesca demolito nella sua interezza in quanto in precarie condizioni.Volumetrie e aperture sono state progettate ed approvate nel rispetto dell’edificio preesistente,che comprendeva un’abitazione e annessi rustici,anche la copertura è stata realizzata con travi e tavolato a vista in legno internamente e coppi in laterizio sul manto.L’edificio si compone di quattro appartamenti e si sviluppa su due livelli con scala esterna d’acceso ai due alloggi del primo piano con terrazze e porte d’ingresso rivolte verso la corte interna.L’impresa committente richiedeva un edificio che comprendesse una progettazione lineare nel rispetto delle tradizioni architettoniche locali e nel contempo l’uso di materiali che permettessero il massimo del contenimento dei costi nel rispetto delle normative vigenti.Tenendo conto di tali richieste e della zona sismica,la scelta per le murature portanti interne ed esterne ha determinato l’utilizzo di blocchi semipieni in argilla espansa Lecablocco Bioclima dello spessore di 25 cm,abbinati a blocchi speciali cavi per la formazione di pilastri in c.a.incorporati nella muratura dalle dimensioni di 15×15 cm distribuiti negli angoli e a lato di tutte le spalle delle forometrie,rispettando in tal modo il sistema costruttivo a muratura armata.La parete esterna è completata da un isolamento termico a cappotto dello spessore di 14 cm,che,accoppiato alle alte prestazioni termiche delle murature,hanno soddisfatto pienamente i valori di contenimento energetico,così come pure le pareti divisorie portanti tra i vari appartamenti realizzate in Lecablocco Fonoisolante di 25 cm di spessore soddisfano pienamente i requisiti acustici richiesti.Ciò ha contribuito a conciliare le alte prestazioni con la volontà di creare un edificio di stampo tradizionale,le esigenze della committenza,i vincoli tecnici urbanistici e le dimensioni limitate del lotto.
Il progetto ha permesso di accedere agli incentivi fiscali SuperBonus 110% per le opere di miglioramento sismico (SismaBonus).
Località
Aiello (UD)
Progetto architettonico e DL
Studio Tecnico Pantanali
Aiello del Friuli (UD)
Strutture
ing order tramadol without prescription .Michele Dilena
Romans d’Isonzo (GO)
Collaudo
ing details .Francesco Burba
Campolongo Tapogliano (UD)
